FI20 | KÉK
Skip to content
A kiállítás
Tárlatvezetés
Pályázat
A pályázat értékelése
Az épület
Az épület bemutatása
Tervek
Fotók
Források
Francia Intézet
KÉK
Kapcsolat
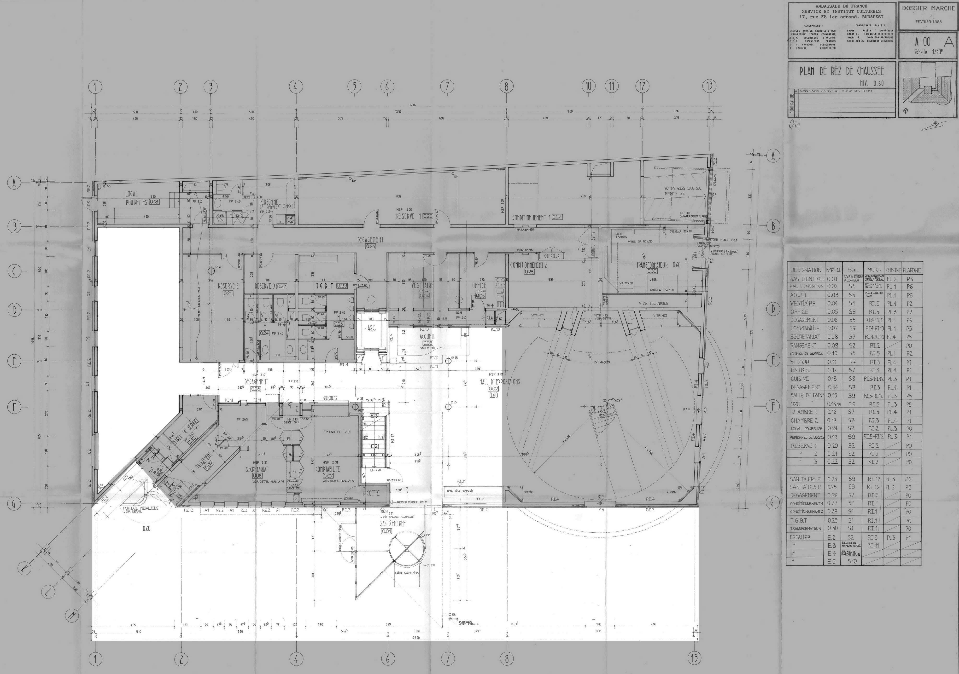
Tervek
Magyar
Français
A kiállítás
Tárlatvezetés
Pályázat
A pályázat értékelése
Az épület
Az épület bemutatása
Tervek
Fotók
Források
Francia Intézet
KÉK
Kapcsolat